Designed as a continuous ribbon partially enveloping the existing building, the new structure delineates a common pathway of progress through the school.
![]() |
Czech Office Interagent Bridge Portland Robbins |
|
ROBBINS ELEMENTARY SCHOOL
Trenton, New Jersey
Designed as a continuous ribbon partially enveloping the existing building, the new structure delineates a common pathway of progress through the school.
|
|
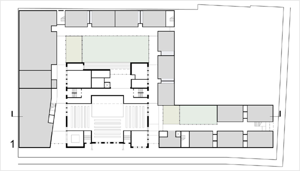
The ribbon is composed of classrooms facing outdoor learning and shared instructional spaces. Additional shared spaces, including the auditorium and gymnasium, are placed in the existing building. The space between new and existing structures along the primary street frontage provides two major access points to the school, allowing for a prominent entry for students and parents while providing separate access for the youngest children.
|
|
The light, variable addition contrasts with the existing heavy masonry school building.
|
|
The ribbon takes the form of a series of tapered segments which modulate the scale of the new school in response to contextual and programmatic conditions.
|
|
Extending around the sides of the existing brick structure, the segments recede to allow light and air into indoor and outdoor spaces.
|
|
Sod roofs cover the sloping segments and thin façade of metal and glass unifies the varied units within a consistent wrapper, clearly marking the protective environment of the elementary school.
|
|